Leboard.ruВыбор пользователей Яндекс– Выбор пользователей по данным Яндексаi Знак “Выбор пользователей” получают сайты с высокой степенью вовлечённости и лояльности пользователей по данным Яндекса
open chatПодать объявлениевверх

Проект д2

545 000 ₽это на 14% дешевле, чем в магазинах
Проект д2
Проект д2 в Самаре
Проект д2 в Самаре фото 3
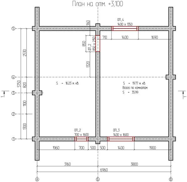
Стоимость дома 545000
Площадь дома 72м2
Размер 6.3м
х 7.5м
Диаметр
бревна 220мм
Местоположение
Самара, Россия
Показать на карте
Более месяца назад, 44 просмотра Пожаловаться