Leboard.ruВыбор пользователей Яндекс– Выбор пользователей по данным Яндексаi Знак “Выбор пользователей” получают сайты с высокой степенью вовлечённости и лояльности пользователей по данным Яндекса
open chatПодать объявлениевверх

Дом из газоблока

5 000 ₽
Дом из газоблока
Дом из газоблока в Перми
Дом из газоблока в Перми фото 3
Дом из газоблока в Перми фото 4
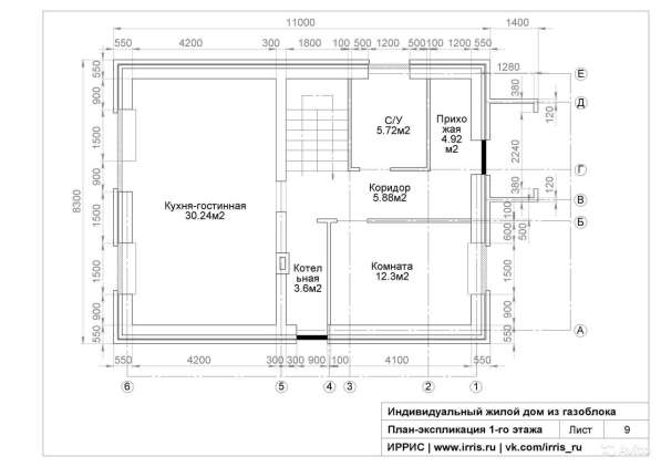
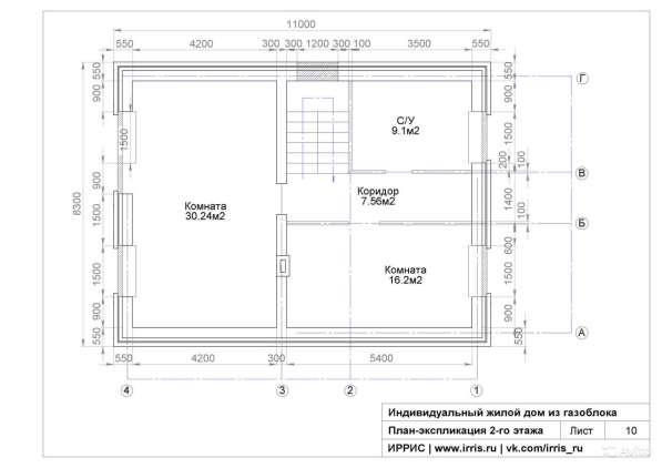
Продам проект коттеджа, 11х8,3м из газоблока с фасадом из кирпича, со всеми спецификациями и полной сметой. Либо сделаю для вас индивидуальный проект.
Местоположение
Пермь, Россия
Показать на карте
Более месяца назад, 39 просмотров Пожаловаться