Leboard.ruВыбор пользователей Яндекс– Выбор пользователей по данным Яндексаi Знак “Выбор пользователей” получают сайты с высокой степенью вовлечённости и лояльности пользователей по данным Яндекса
open chatПодать объявлениевверх

Разработка однолинейных схем, проектирование электрощитов

договорная цена
Разработка однолинейных схем, проектирование электрощитов
Разработка однолинейных схем, проектирование электрощитов в Москве
Разработка однолинейных схем, проектирование электрощитов в Москве фото 3
Разработка однолинейных схем, проектирование электрощитов в Москве фото 4
Разработка однолинейных схем, проектирование электрощитов в Москве фото 5
Разработка однолинейных схем, проектирование электрощитов в Москве фото 6
Разработка однолинейных схем, проектирование электрощитов в Москве фото 7
Разработка однолинейных схем, проектирование электрощитов в Москве фото 8
Разработка однолинейных схем, проектирование электрощитов в Москве фото 9
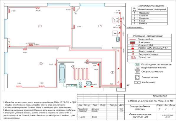
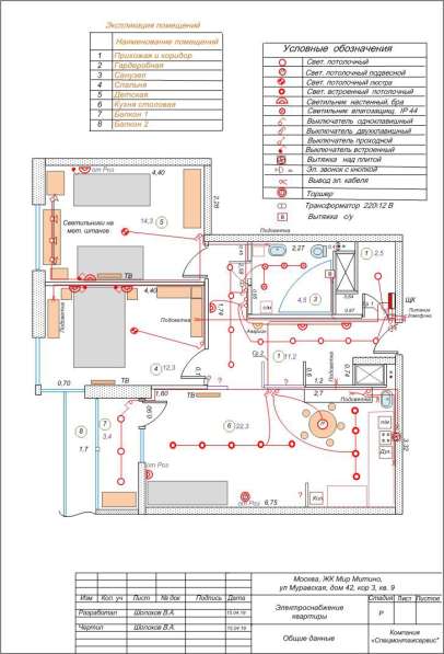
Разработка чертежей, схем электрощитов, схем электроснабжения. Разработка проектной документации раздела ЭОМ для электроснабжения зданий, квартир, магазинов. Составление планов осветительной и розеточной сети, выполнение расчёта электрической нагрузки. Восстановление схем электроснабжения, разработка новых схем электрических щитов. Оцифровка чертежи, схемы, планы этажей, освещения, электрооборудование, заземление, спецификаций и др. в программах Visio и AutoCAD. Проведение электроизмерений, составление Тех. отчета, сдача помещений службе эксплуатации и энергонадзору. Виктор Алексеевич ,
Местоположение
Москва, Россия
Показать на карте
Более месяца назад, 737 просмотров Пожаловаться