Leboard.ruВыбор пользователей Яндекс– Выбор пользователей по данным Яндексаi Знак “Выбор пользователей” получают сайты с высокой степенью вовлечённости и лояльности пользователей по данным Яндекса
open chatПодать объявлениевверх

Дом-баня из оцилиндрованного бревна СВЕТОЗАР.- 105

3 500 000 ₽
Дом-баня из оцилиндрованного бревна СВЕТОЗАР.- 105
Дом-баня из оцилиндрованного бревна СВЕТОЗАР.- 105 в Москве
Дом-баня из оцилиндрованного бревна СВЕТОЗАР.- 105 в Москве фото 3
Дом-баня из оцилиндрованного бревна СВЕТОЗАР.- 105 в Москве фото 4
Дом-баня из оцилиндрованного бревна СВЕТОЗАР.- 105 в Москве фото 5
Дом-баня из оцилиндрованного бревна СВЕТОЗАР.- 105 в Москве фото 6
Дом-баня из оцилиндрованного бревна СВЕТОЗАР.- 105 в Москве фото 7
Дом-баня из оцилиндрованного бревна СВЕТОЗАР.- 105 в Москве фото 8
Проект двухэтажной бани Светозар-105 создан проектировщиками компании Могута еще в 2014 году, но до сих пор не потерял своей популярности и шарма. Эта двухэтажная баня выполнена в лучших финских традициях – оригинально и вместе с тем просто созданный объем проекта, интересная крыша из гибкой черепицы позволяет реализовать этот проект двухэтажной бани от фирмы #деревянныедомаМогута в различных цветовых решениях. Проект двухэтажной бани Светозар-105 состоит из кухонной зоны и зоны отдыха, двух спален, сауны и душевой. Двухэтажную баню Светозар-105 можно использовать в качестве гостевого дома. На обширной террасе можно проводить тихие посиделки или веселые вечеринки). Проекты двухэтажных бань также можно увидеть в нашей коллекции проектов. Например, отличный проект бани в два этажа можно увидеть здесь:
Проект двухэтажной бани Свтозар-105 мы предлагаем реализовать в нескольких материалах: клееный брус, профилированный брус или оцилиндрованное бревно. Также большинство наших проектов можно построить в каркасном исполнении.
Напоминаем, что любой проект из нашей коллекции #деревянныедомаМогута мы можем адаптировать под Ваши пожелания и вкусы.
Более подробно об этом проекте можно узнать на странице нашего сайта:
#деревянныедомаМогута – проект двухэтажной бани
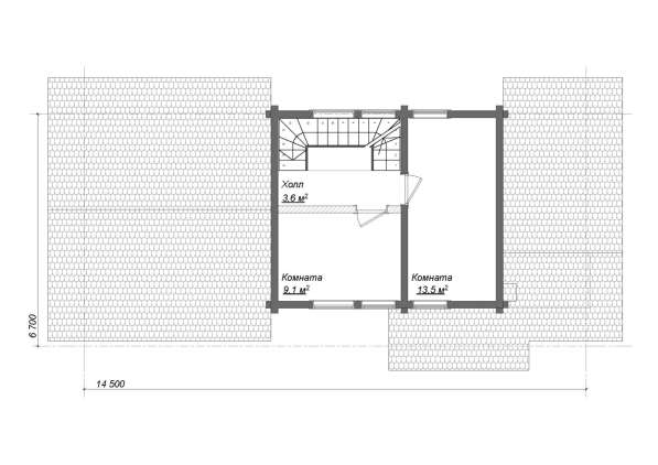
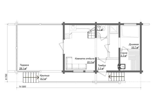
Общая площадь: 105,8 м2
Площадь 1 этажа – 79,6
Терраса – 28,1
Комната отдыха – 22,3
с\у – 1,7
тамбур – 3,3
душевая – 10,7
сауна – 5,3
крыльцо – 8,2

Площадь 2 этажа – 26,2
Холл – 3,6
Комната – 9,1
Комната – 13,5

Цена бани в клееном брусе толщиной 160 мм – от 3 900 000 руб
Цена бани в профилированном брусе толщиной 200 мм – от 3 500 000 руб
Цена бани в оцилиндрованном бревне 220 мм – от 3 500 000 руб
В стоимость входит:
- ленточный фундамент на буронабивных сваях
-стены из бруса или бревна
-перекрытия с черновым настилом
- крыша из гибкой черепицы "под ключ": стропила и обрешетки, паро-гидроизоляция, утепление 200мм, подшив карнизов, устройство водостоков и снегозадержания
Местоположение
Москва, Россия
Показать на карте
Более месяца назад, 10167 просмотров Пожаловаться