Leboard.ruВыбор пользователей Яндекс– Выбор пользователей по данным Яндексаi Знак “Выбор пользователей” получают сайты с высокой степенью вовлечённости и лояльности пользователей по данным Яндекса
open chatПодать объявлениевверх

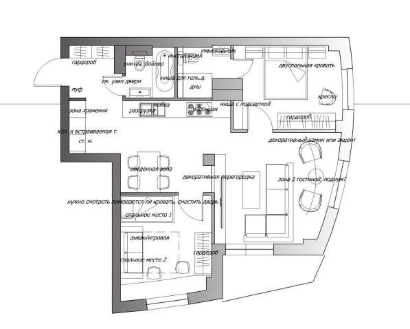
Дизайн квартир минск

договорная цена
Дизайн квартир минск
Дизайн квартир минск в
Дизайн квартир минск в фото 3
Дизайн квартир минск в фото 4
Дизайн квартир минск в фото 5
Дизайн квартир минск в фото 6
Дизайн квартир минск в фото 7
заказать дизайн квартиры или дома -бесплатное первое планировочное решение по акции до 1.10.2019 -визуализация -рабочая документация
Местоположение
Минск, Беларусь
Показать на карте
Более месяца назад, 90 просмотров Пожаловаться